Baileybrugweg 5
Baileybrugweg 5
Baileybrugweg 5
Baileybrugweg 5
Baileybrugweg 5
Baileybrugweg 5
Baileybrugweg 5
Baileybrugweg 5
Baileybrugweg 5
Baileybrugweg 5
Baileybrugweg 5
Baileybrugweg 5
Baileybrugweg 5

Baileybrugweg 5

Raamsdonksveer

verhuurd

Ook uw woning of bedrijfspand succesvol verkopen? Neem dan contactmet ons op

Omschrijving

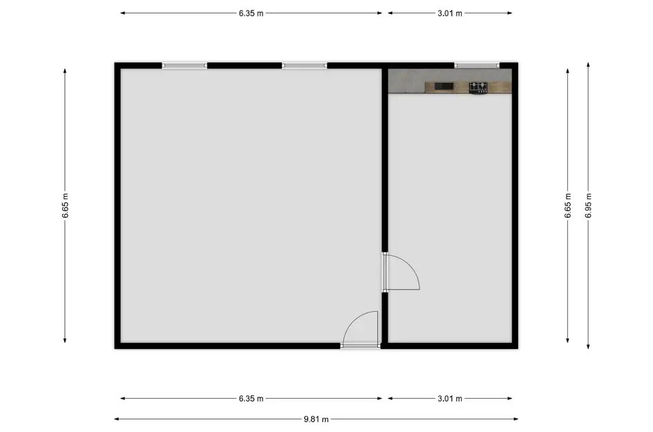
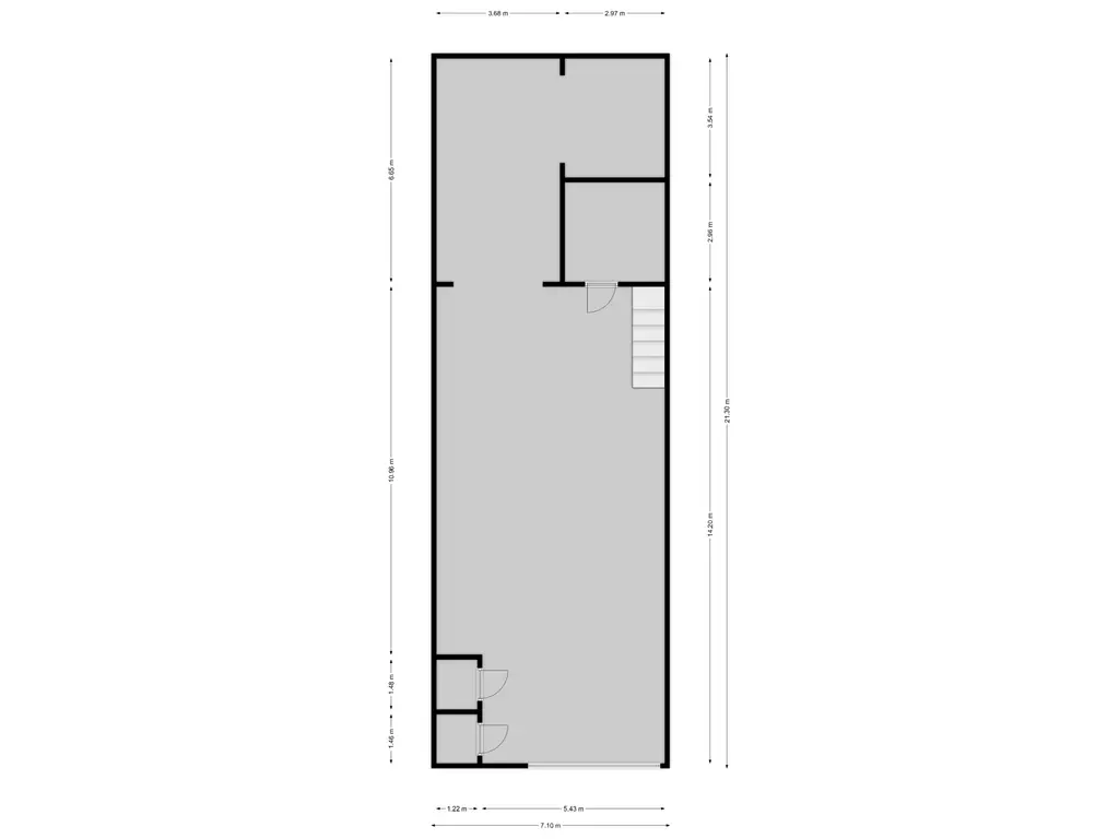
Bedrijfsunit van ca. 199 m² met bedrijfsruimte van ca. 142 m², kantoorruimte van ca. 57 m², elektrische overheaddeur, toilet en verdere aanhorigheden


Situering
De bedrijfsunit is gelegen aan de Baileyburgweg 5 te Raamsdonksveer, direct naast de A27, op het bedrijventerrein “De Pontonnier“, dat bekendstaat als een modern en functioneel bedrijvenpark, ingericht voor logistieke, industriële en kantoorfuncties. De naam verwijst naar de historie van pontonbruggen en de nabijheid van waterwegen.

Het bedrijventerrein is goed bereikbaar via de nabijgelegen snelwegen A27 en A59, wat het een strategische locatie maakt voor zakelijke activiteiten.


Opleveringsniveau

Bedrijfsruimte:
- Vrije hoogte: ca. 5,50 m
- Vrije overspanning: ca. 14,4 m
- Gladde betonvloer
- Maximale vloerbelasting: 1.500 KG/per m2
- Sandwichpanelen als wandafwerking
- Deels betonnen plafond, deels systeemplafond
- Gasheaters
- Elektrische overheaddeur (H: ca. 4,2 m - B: ca. 3,90 m)
- Toilet

Kantoorruimte:
- Met houtwerk afgewerkte wanden, deels gesausd
- Betonnen plafond, deels gesausd
- PVC als vloerafwerking
- Pantry voorzien van spoelbak, koelkast en oven
- Airconditioning


Opleveringsniveau algemeen

Bedrijfsunit:
- Bouwjaar 2009
- Staalconstructie met panelen
- Plat dak bitumineus gedekt
- Vlak afgewerkte betonvloer
- Elektrische overheaddeur


Bestemmingsplan

Het object valt binnen het bestemmingsplan van de Gemeente Geertruidenberg
“Bedrijventerrein De Pontonnier e.o. 2022” met de bestemming “Bedrijventerrein“.


Bestemmingsregels

Artikel 5 Bedrijventerrein
5.1 Bestemmingsomschrijving
De voor ‘Bedrijventerrein’ aangewezen gronden zijn bestemd voor:
a. het uitoefenen van bedrijfsmatige activiteiten die staan vermeld in de categorieën
2 tot en met 3.2 zoals opgenomen in bijlage Bijlage 4 Staat van Bedrijfsactiviteiten;
b. ter plaatse van de aanduiding ‘dienstverlening’: tevens dienstverlening;
c. ter plaatse van de aanduiding ‘specifieke vorm van bedrijventerrein - 4’: tevens
de
ontwikkeling, bouw en verkoop van vliegende en rijdende transportmiddelen;
d. ter plaatse van de aanduiding ‘kantoor’: tevens voor een zelfstandig kantoor;
e. opslag;
f. ondergeschikte productiegebonden detailhandel, waarbij het oppervlakte niet meer mag bedragen dan 30% van het totale bedrijfsoppervlak met een maximum
van 500 m;
g. uitsluitend ter plaatse van de aanduiding ‘verkooppunt motorbrandstoffen zonder lpg’: de verkoop van motorbrandstoffen, met uitzondering van lpg;
h. voorzieningen ten behoeve van lig- en aanmeerplaatsen voor bedrijfsschepen;
i. erven en verhardingen;
j. verkeer- en parkeervoorzieningen;
k. groenvoorzieningen;
l. water en waterhuishoudkundige voorzieningen;
m. nutsvoorzieningen.


Te huur: € 1.500,- excl. BTW per maand

Oplevering: Per 1 november.


Servicekosten
De kosten van gas, water, elektra en riool- en reinigingsrechten zijn niet bij de huurprijs inbegrepen. Deze kosten dienen door huurder rechtstreeks aan de
desbetreffende nutsinstellingen te worden voldaan.

Zekerheidsstelling
- Een waarborgsom zal gesteld worden ter grootte van 3 maanden huurverplichting inclusief 21% BTW en servicekosten; of;
- Bankgarantie ter hoogte van drie maanden huur inclusief BTW en servicekosten.

Bijzonderheden
- Verhuurder behoudt zich het recht bepaalde branches om moverende redenen te weigeren;
- Bij opzegging van de huur dient bij oplevering alles in oorspronkelijke staat te worden opgeleverd of in nader overleg.


Deze informatieverstrekking geschiedt geheel vrijblijvend en onder voorbehoud van tussentijdse verhuur c.q. wijzigingen.

Voor nadere informatie en/ of een afspraak voor een bezichtiging kunt u te allen tijde contact opnemen.
Lees meer

Kenmerken

Overdracht

Huurprijs
verhuurd
Status
verhuurd
Aangeboden sinds
8 oktober 2025
Aanvaarding
per datum

Bouw

Hoofdbestemming
bedrijfsruimte
Bouwjaar
2009
Bouwperiode
2001-2010

Plattegronden

Locatie

Downloads

Meer informatie?